- Feature
- Posted
Mass appeal
An architect’s four-year quest to build his family home on a Dublin laneway demonstrates how mass timber can maximize space and character in the tightest urban sites – with award-winning results, and fascinating performance insights.
Additional reporting by Jeff Colley
Click here for project specs and suppliers
Development type: New-build urban infill terrace.
Method: Cross-laminated timber structure with decentralized heat recovery – and insightful monitoring data.
Location: Portobello, Dublin City Centre
Standard: A1-rated and passive house (pending certification)
Space heating cost: €221/year
(see In detail panel for a full breakdown)
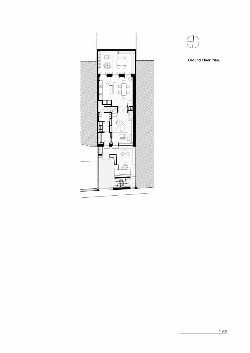
It may look simple enough from the outside, but there’s a whole lot going on inside that makes this three-bedroomed home in the heart of Dublin city a really innovative prototype for modern urban terraced living.
Teach Sprúis is the latest addition to a short row of terraced homes built across a number of adjoining infill sites in one of the laneways off the charming and distinctive Victorian terraced streets of Portobello. The house sits not far from where its owner and architect John Barry Lowe grew up in Baggot Street and, having lived all over Dublin, he was keen to settle himself and his family somewhere between the inner city’s Royal and Grand canals.
It’s a four-year labour of love for Lowe, founder of Dublin-based Eden Architects and a certified passive house designer who also teaches at UCD’s School of Architecture. That love is also being reflected back at Lowe: the house won the Best Small-scale Private Building gong at the Wood Awards Ireland 2024 and was Highly Commended in the Sustainability Award at the RIAI Architecture Awards 2025.

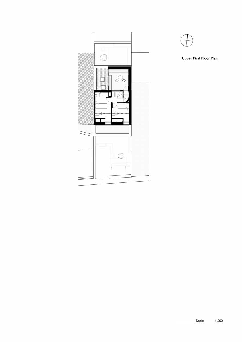
Since completion in 2023, construction has already begun on the home of the Lowe family’s new neighbours that will complete this modern terrace. Unlike most terraces, each of the buildings are standalone developments with very little in common in terms of design, size and construction beyond a very roughly similar footprint. But closer investigation reveals Teach Sprúis to be a real outlander because of its innovative two-and-a-half storey layout built using an internally exposed structure made largely of cross-laminated timber (CLT), and all to the passive house standard.
The first hint of difference that marks this 135 sqm dwelling from its terrace neighbours is the row of clerestory windows positioned directly above the shallow single-storey flatroofed extension at the front, which beams in sunlight into a south-facing double-height front room. A central stair connects four storeys with varying ceiling heights, rising first to a mezzanine at the front, through two levels of bedrooms and ending in the roof terrace to the rear.
An abundance of beautifully finished wood walls and ceilings give off a distinctive timber aroma, largely due to the naturally occurring terpenes in the timber. A selection of walls have been finished in plasterboard to break up the predominance of exposed timber.

While CLT offers a number of distinct advantages as a construction material, there’s no doubting that it’s still very expensive, not widely available and possibly even a bit of an overkill for a modest sized house – as Andy Simmonds and Lenny Antonelli wrote in issue 49 of Passive House Plus, CLT starts to make sense environmentally for buildings of six storeys or more. Below these heights, a lighter weight timber frame, which uses precious resources more sparingly, may be more justified.
Nonetheless in a country which has been slow to embrace mass timber, prominent examples like Teach Sprúis may serve as important exemplars to demystify the approach. And Lowe, who discovered CLT while doing some research for his students at UCD, has his reasons for choosing it.
“The key thing for me was that the house had to be passive house... and passive house is material agnostic, so it doesn’t really care what material you use and there was definitely no need to use it for that reason,” said Lowe.
“But one of the huge advantages of CLT is the aesthetics of it; internally it just imparts a character to the spaces that is very special.”
Lowe believes his house is possibly only one of a handful of houses in Ireland built using exposed CLT. In fact, if it wasn’t possible there would be practically no point in using the material, he said. The lack of voids or empty spaces in the construction also appeals to him.

This article was originally published in issue 51 of Passive House Plus magazine. Want immediate access to all back issues and exclusive extra content? Click here to subscribe for as little as €20, or click here to receive the next issue free of charge
“As an architect, I like solid construction.”
The second reason for choosing CLT was its strength-to-thickness ratio, meaning that walls could be built thinner – after insulation – so as to optimise the amount of interior space. Specifically, Lowe says he was saving up to 100mm for each wall. “In a countryside site where you’ve loads of land and space it’s not an issue, but in a tight urban site, it helps,” he said.
That strength allowed the floors to be thinner than normal too, further leveraging gains in usable interior space, such as the part of the house where there are two small floors stacked on each other. “That was originally why I wanted to use the CLT as a structural floor, and then I kind of grew into the structural walls and the whole house and I started thinking like that. Its strength versus thinness is, I think, not insignificant. Again, in a countryside where you’ve loads of land it’s not an issue, but it works well for a tight urban site.”

In essence, the use of CLT enabled the creation of an interior layout that is two storey at the front and three storey at the back, which in turn provided the scope to create interesting but still very accessible spaces. “Some architects design floors that drop different floor levels, but that’s not very user-friendly. In a way, if you step the ceilings you almost get the same effect.”
Being the second last build in this row of Portobello terraces, Lowe and his team had the advantage of easy right-side access from the last remaining site, which was just as well as the CLT panels that made up the walls are massive. Another benefit was obtaining permission to store the panels on top of a nearby garage until they were ready to go up.
-
Steel angles bolted to concrete slab and top of rendered rising walls ready to take CLT wall panels
Steel angles bolted to concrete slab and top of rendered rising walls ready to take CLT wall panels
-
Rear terrace and roofs during installation of three-layer 240 mm wood-fibre insulation
Rear terrace and roofs during installation of three-layer 240 mm wood-fibre insulation
-
Rear brick cavity wall with basalt wall ties and window fully enclosed in 250 mm rockwool insulation on EPS sill
Rear brick cavity wall with basalt wall ties and window fully enclosed in 250 mm rockwool insulation on EPS sill
-
Detailed view of completely level CLT wall panel separated from rising wall by packers prior to side fixing of screws in plate
Detailed view of completely level CLT wall panel separated from rising wall by packers prior to side fixing of screws in plate
-
Rear of ground floor wall panels with taped internal junctions for airtightness
Rear of ground floor wall panels with taped internal junctions for airtightness
-
View from front of upper first floor wall, floor and roof panels under construction
View from front of upper first floor wall, floor and roof panels under construction
-
CLT frame fully covered in self-adhesive temporary weather protection and airtightness membrane
CLT frame fully covered in self-adhesive temporary weather protection and airtightness membrane
-
View of windows to front mounted forward of CLT in external insulation zone on Bosig structural board below
View of windows to front mounted forward of CLT in external insulation zone on Bosig structural board below
-
Detailed internal view of ground floor door and wall junctions with airtightness tape and brush-applied membrane
Detailed internal view of ground floor door and wall junctions with airtightness tape and brush-applied membrane
-
Detail of ground floor EPS build-up with microbead insulating screed fill around service pipes
Detail of ground floor EPS build-up with microbead insulating screed fill around service pipes
https://passivehouseplus.co.uk/magazine/feature/mass-appeal#sigProId4c1cb0e458
Room to breathe
The design also called for the partial use of glulam or glued laminated timber beams, a slightly older but stronger form of engineered wood, in areas where standard CLT wasn’t strong enough. Both the CLT panels and glulam beams that make up the structure were supplied and put together by Lee Murphy of UK-based contractors G-Frame, which has recently established an Irish office. Lowe also opted to build non-structural brick walls into the staircase, along with ceramic brick ceilings over the kitchen and dining room for both sound and heat regulation by virtue of their thermal mass. The fabric strategy in this home is very much driven by breathability – the term used to describe the ability of a building to “sweat” and allow vapour to migrate through building fabric, rather than get stuck and cause damage – from the lime mortar bricks that clad the exterior walls front and back to the woodfibre in the pitched roof and the Rockwool wall insulation. “With the wood on the inside I’m obsessed about everything breathing, so the whole fabric has to be vapour diffusion open,” said Lowe. The only exception was the PIR-insulated flat roofs, which offer protection from moisture damage in the event of a leak. The use of plasterboard on some walls alongside the exposed CLT also facilitated the running of electrical cables behind them without having to use exposed pipes to run along the woodwork given the lack of hollow spaces in the CLT.
The solid construction also had a bearing on the decision to reject a traditional MVHR system with all its supply and delivery pipes in favour of two decentralised heat recovery units, one on the ground floor and the other at the very top floor.
“They literally suck air from the bathrooms and kitchens and deliver heated fresh air back just at the wall where they are located. So, there’s no fresh air being delivered explicitly to any of the rooms, but the fresh air just has to get moved around to get to the rooms, so it means you’ve no supply pipes.”
With the high levels of airtightness and insulation, the heat load is just 1.2 kilowatts, so a standard heat pump was deemed unnecessary. Lowe was aware of alternative solutions that could mix space and hot water heating, but he wanted to keep things simple so, alongside the decentralised heat recovery units for the kitchen and living areas, space heating is catered for by three direct electric towel rails in the three bathrooms.
The Lowe family look to have adapted nicely to the unique character of their new home over the last two years. “It’s been a joy living in the house, an absolute joy, and it’s very comfortable,” says Lowe. His family is enjoying a layout that essentially embeds the hall and stairs more into the circulation of the house, which encourages mixing while also allowing each member to have their own space and privacy as well.
A permanent bike shelter at the front of the house fits in nicely with a design that’s all about making sure that all spaces are used and that everything is easily accessible. Otherwise, of course, they’ll gather dust and be forgotten about -- not to mention take up valuable space. The only aspect of this home that might see more evolution in the shorter term is the heating, hot-water and ventilation trio, with Lowe intending to fine tune and adapt its workings as the technology develops. “It’s changing all the time as well because it’s constantly improving.”

Unpicking temperature and air quality data
To assess the building’s indoor air quality, Lowe placed a QingPing Air Quality Monitor (Gen 1) on the piano, located in a shady corner of the south-facing living room. To his credit, he shared the unvarnished results for this article, with Passive House Plus reviewing 12 months of monitoring results up to 15 February 2025. Although monitoring began in mid-February 2024, the measurement intervals were changed from 10 minutes to 15 minutes in May. This change made a detailed quantitative analysis of the earlier data too time-intensive for the magazine’s deadline – meaning only data from May on was included. Over the 279-day analysis period, the monitor took a total of 26,449 readings at 15-minute intervals, including temperature data and a number of pollutants, including humidity, carbon dioxide, volatile organic compounds and fine particulate matter.
Temperature analysis: strong summer performance
The living room data indicates good performance against overheating:
→ Readings above 25C
507 readings, translating to a total of 5.3 days.
→ Readings above 26C
68 readings, a total of only 0.7 days.
All readings above 25C occurred between 24 June 24 and 21 October. These results are notable. Despite being a south-facing living room and 2024 being the fourth hottest year on record in Ireland, they suggest the house likely fell far below the calculated passive house limit (which allows no more than 10 per cent of the year above 25C).
No summer overheating, but surprising spring and autumn spikes
Despite the strong overall performance, the data revealed curious anomalies: the highest temperatures did not occur in mid-summer. In fact, from 7 April to 10 September 2024, the temperature never once reached 30C. However, significant spikes occurred outside this summer period:
→ Before 7 April – 58 readings above 30C (indicating up to 14 hours at these temperatures from February to April)
→ In September – 17 readings above 30C (indicating about 4 hours)
Explaining the spikes: sun angles and ventilation
These high-temperature events (totaling seventy-five readings across 15 days) followed a consistent pattern. Without exception, all temperatures above 30C were recorded in the afternoon, with the vast majority occurring between 3 and 5pm in sequential readings lasting about an hour. Lowe, who “noticed this myself and felt it,” provided an explanation for this phenomenon. He points to a combination of factors:
- Effective summer shading: “The external solar shading is extremely effective in summer at excluding sunlight,” Lowe says. This, combined with open windows allowing for stack ventilation, helps keep the house cooler.
- Low-angle spring sun: “In April,” he explains, “the windows will still be closed and the low angle of the sun will evade the solar shading.” This low-angle sun hits the large, south-facing window, causing significant heat buildup.
- Ventilation: This effect is compounded because the decentralised MVHR units “will be automatically low if the house is empty.”
Helped by housing typology
Lowe acknowledges the advantages a house like his offers. “When at the ZEB Summit, I got a sense of the challenge of designing passive house apartments beside a motorway, where you are avoiding overheating without relying on opening windows due to noise or pollution. In our case the windows are open a lot in summer – basically six months a year. That is lovely. If you open windows in a normal house, even in April to September, you would often experience a cold draught. In passive house, it never seems like more than a warm breeze.”
The bête noire of indoor pollutants: PM2.5
Tiny, fine airborne particles with a diameter of 2.5 micrometers or less, PM2.5 is small enough to be inhaled deep into the lungs and is associated with a range of cardiovascular and respiratory diseases. These particles come from sources like vehicle exhausts, factories, wildfires and combustion devices. A harm index created by world-leading air quality scientists at the University of Nottingham has singled out PM2.5 as the greatest cause of chronic harm among pollutants in homes. Cross referencing the harmfulness off a pollutant against prevalence in homes, the index places PM2.5 first among six key pollutants in the home, along with PM10, NO2, formaldehyde, radon, and ozone.
Teach Sprúis is nestled away down a lane within 100 metres or so of a busy Dublin road, although research indicates that PM2.5 levels from traffic tend to drop significantly within that sort of distance.
→ Overall mean result (May to February): 7.12 μg/m³
→ Summer mean (June to August): 5.23 μg/m³
→ Autumn mean (September to November) :9.06 μg/m³
→ Winter mean (December to February): 6.44 μg/m³
These figures indicate that the home exceeds the WHO Air quality guidelines annual target of 5 μg/m³.
The vast majority of higher readings in the data are occurring in the afternoon or evening, suggesting that the stove in the living area may be the cause.
Spikes in particulate levels
According to the Indoor Air Hygiene Institute, 35 μg/m³ is “unhealthy and can cause issues for people with existing breathing issues such as asthma”. On 46 days PM2.5 levels spiked above 35 μg/m³, all between September and February. In some cases this occurred briefly. In some cases it occurred over several hours, with a trend evident in the data:
→ PM2.5 levels exceeded 35 ug/m3 in mid-afternoon or early evening.
→ Levels quickly spiked – in some cases to levels well above 100 μg/m3 – before gradually declining, eventually falling below 35 μg/m3 after a couple of hours or more.
→ Curiously, most of these days occurred between September and November, with just 11 days with at least an hour above 35 μg/m3 from December on.
→ This is borne out in the feedback from Lowe, conducted before the data analysis. “The stove was used very little,” he said. “It is more of an insurance policy as we have no scalable heating system. We lit it maybe 10-12 times over December to February when temperatures might only be 18 or 19C.”
Lowe says that an electric under-rug mat now helps this heat deficit more effectively, meaning the stove is “more for ambience”, and has used very little fuel. “I think it is really only about six to eight of the net bags that cost about €7 each, or about €50 for the season.”
Relative humidity and CO2 levels steadily low
40 to 60 per cent relative humidity (RH) is regarded as ideal for occupant health, with ASHRAE Standard 62.1-2016 recommending that “relative humidity in occupied spaces be controlled to less than 65 per cent to reduce the likelihood of conditions that can lead to microbial growth.” The room achieved a mean RH of 56.6 per cent, breaking down as follows:
→ within 40-60 per cent RH for 78 per cent of the time
→ between 60-65 per cent RH for 20.2 per cent of the time
CO2 levels
Guidance on CO2 levels is less consistent, but it’s generally regarded that levels below 800 parts per million (ppm) are ideal, with some guidance suggesting 1000 ppm is the upper end of acceptable indoor CO2 levels. The room achieved the following results:
→ under 800ppm 82 per cent of the time
→ under 1000ppm 97.3 per cent of the time
→ under 1200ppm 99.7 per cent of the time
Volatile organic compounds
Lowe’s monitor also measures total volatile organic compound (tVOC) levels, which is measured in parts per billion (ppb):
→ 332 ppb mean – above the 100-200 ppb band which the WHO describes as harmless
→ 961 readings above 610 ppb – equivalent to about 10 days above a level describes as unacceptable by the WHO
Summer spikes in tVOCs
Higher levels are much more frequent during warmer months, when higher temperatures may cause evaporation of building materials. But it’s not possible to say which materials this may have come from, or if other household products were involved. Treating tVOC results with caution
Passive House Plus reached out to indoor air quality expert Simon Jones of Air Quality Matters, who cautioned against drawing conclusions from tVOC monitoring, given the breadth of VOCs it lumps in together. “The only VOC measurements worth doing are speciated ones,” he says.
Only one VOC sits on the aforementioned harm index: formaldehyde. The Stora Enso CLT features a formaldehyde-free binder. But as Jones explains, air chemistry is fiendishly complex. The relatively benign naturally occurring terpenes in timber react to ozone, which enters buildings via infiltration or ventilation. That reaction breaks terpenes down into aldehydes such as formaldehyde and ultra fine particulate matter.
It’s important not to overstate the issue. It’s not clear that high levels of aldehydes and PM are being generated from exposed timber, and the reality is that homes include a variety of materials, technologies and household products which can cause harmful VOCs, particulates and other pollutants to accumulate. And there are positive signs in the IAQ data for this house – as borne out in the RH and CO2 data.

Energy use and indoor environmental quality (IEQ)
Air quality context: Urban site, away from car traffic so clients feel there is no issue with opening windows for air quality and noise
Air quality index: an annual average score of 32 AQI (above the moderate pollution threshold of 20 AQI), based on Dublin, using the Plume Air Quality Index - peaking at 102 AQI (very high pollution) at a stage during winter 2024/2025.
IEQ monitoring period: May 2024-February 2025
Living room
→ Average temperature: 20.9C
→ Percent of period above 25C: less than 1.5 per cent
→ Average CO₂ levels: 641 PPM
→ Percent of period above 1500 PPM: 0 per cent
→ Relative humidity: average of 56.6 per cent (minimum 34.6 per cent, maximum 74.9 per cent) → PM2.5: average of 7.1 μg/m³
→ Percent of period above 15 μg/m³: 8.4 per cent
Radon: not measured
Space heating cost (calculated): €187/year (€15.60/month).
This is based on:
→ PHPP space heating demand of 14.7 kWh/m2/yr
→ €50/year (bags of logs from petrol station), assumed to cover 20 per cent of demand
→ €46 at night rate electricity (30 per cent of demand at €0.1362c/kWh)
→ €91 at day rate electricity (50 per cent of demand at €0.26919c/kWh)
Total energy costs (actual): €924 annual bill (Oct 2023 to Sep 2024), inclusive of VAT – including all heat, hot water, ventilation, lighting and appliances. This breaks down as:
→ €751 for all electricity use
→ €333 standing charge
→ €210 payment from feed in tariff
→ €50 for purchasing logs
Measured energy consumption
(Oct 2023 to Sep 2024):
→ Solar Production: 3,529 kWh
→ Exported: 700 kWh
→ Solar Consumed: 2,829 kWh
→ Grid Consumed: 2,369 kWh
→ Total Consumption (solar and grid): 5,198 kWh
→ Usage: 43 kWh/m²/yr
Grid consumption:
→ Day 8am - 11pm: 960 kWh
→ Night 11pm - 8am: 279 kWh
→ Night boost 2am - 4am: 2,369 kWh
→ No EV charging
Solar production information taken from inverter software. All other data taken from electricity bills.

Embodied carbon
Cradle to grave total: 490 kgCO2e/m2
Upfront total excluding sequestration: 381 kgCO2e/m2
Upfront total sequestered CO2: -377 kgCO2e/m2
Standard/Framework: RICS WLCA standard, 2nd edition
Calculation tool: PHribbon 6.14
Reference study period: 50 years.
The Reference Study Period has been adjusted from the RICS default of 60 years to 50 years to align with the EU Level(s) framework. This change has been applied consistently across all life cycle modules and is documented in accordance with RICS Section 1.7.
Materials included: All building fabric, including walls, roof, floor, internal walls, intermediate floor; windows; finishes; representative MVHR; wood burning stove and flue; PV. Omissions included ceramics for sinks, WCs, direct electric heaters and FF&E.
Embodied carbon notes: The calculation used EPDs for actual materials or industry association EPDs, along with EPDs for similar products, and default data from the ICE database – with data quality scores (WLCA uncertainty factor) attributed in each case. Construction process emissions used the RICS estimate based on gross internal area (GIA), and all figures are calculated on a kgCO2e/m2 GIA basis.
Selected project details
Architect & project management: EDEN architects
Main contractor: Marr Construction
Civil / structural engineers: Furness Partnership / RBCE
Energy consultant: Passivate
Mechanical contractor: Lynch Plumbing
Frame contractor: G-Frame
Electrical contractor: Mooney Electrical
Airtightness contractor: Aerzeal
Airtightness tester: Greenbuild
Build system supplier: Stora Enso
Thermal breaks: Roadstone / Passive Sills
Timber fixings supplier: Rothoblaas
Wall insulation: Rockwool
Roof insulation: Ecological Building Systems / Unilin
Floor insulation: Kore
Airtightness products: Ecological Building Systems
Windows and doors: Aru Joinery
Roof lights & cladding supplier: Tradecraft
Roofing: Lagan Building Solutions
Rainwater harvesting: Wastewater Solutions

In detail
Building type: 120.6 m² terraced house
Site type and location: Urban, Dublin 8
Completion date: March 2024
Budget: Not disclosed
Passive house certification: Passive house classic certification pending
Space heating demand (PHPP): 14.7 kWh/m²/yr
Heat load (PHPP): 10.8 W/m²
Primary energy non-renewable (PHPP): 52 kWh/m²/yr
Primary energy renewable (PHPP): 19 kWh/m²/yr
Heat loss form factor (PHPP): 2.52
Overheating (PHPP): 4 per cent of year above 25C
Number of occupants: 2.7 (PHPP, but in reality two adults and two children)
Energy performance coefficient (EPC): 0.160
Carbon performance coefficient (CPC): 0.095 BER: A1 (20.8 kWh/m²/yr)
Airtightness: 0.49 ACH at 50 Pa
Thermal bridging: All windows with timber frames, 100 per cent in insulation zone. Passive Sills EPS insulated thresholds to all doors. 330 mm high Roadstone Thermal liteblock wall under CLT frame at ground level. Teplo Tie 315 mm wall ties to cavities. Bosig phonotherm board used at windows.
Ground floor: 22 mm Junkers 2 strip wooden flooring on 50 mm liquid concrete screed on 270 mm Kore EPS Silver (thermal conductivity 0.031 W/mK) on 150 mm concrete slab. Concrete slab and plastered low thermal conductivity block rising walls to create airtight layer.U-Value: 0.11 W/m²K.
Walls: 100 mm brick, 250 mm full fill Rockwool (thermal conductivity 0.037 W/mK), Pro Clima Solitex Adhero airtightness layer on 100 mm CLT. U-Value: 0.148 W/m²K. Render, 300 mm Rockwool slabs (thermal conductivity 0.036 W/mK), Pro Clima Solitex Adhero airtightness layer on 100 mm CLT. U-Value: 0.128 W/m²K.
Pitched roof: LBS Spanish stone slates on 50x35 battens/counter battens on breathable roofing underlay on 240 mm Gutex Multitherm (thermal conductivity 0.040 W/mK) on Pro Clima Solitex Adhero airtightness layer on 100 mm CLT. U-Value: 0.134 W/m²K.
Flat roof: Fibreglass on average thickness 200 mm Xtratherm Sloped PIR (thermal conductivity 0.022 W/mK) on liquid applied vapour barrier on Pro Clima Solitex Adhero airtightness on 120 mm CLT. U-Value: 0.098 W/m²K.
Windows & external doors: Aru triple glazed timber windows and doors. Not PHI Certified.
Average window U-value: 0.82 W/m²K
Roof windows: 2 x Fakro DXF DU6 triple glazed roof windows. Not PHI Certified. U-value: 0.7 W/m²K.
Heating system: Direct electric heating and room sealed stove. Electric heating including 1 x 400 W and 1 x 300 W electric towel rail, 1 x 240 W electric underfloor and 1 x 250 W electric underfloor. Additional heat contributed by LED ribbon light drivers, solar inverter and battery and HW cylinder all located in the hot press located in the center of the ground floor with year-round temperatures typically between 25-33C. 3-5 kW solid fuel stove with external air supply provides back up heating to 4 m high living space. 3 x internal Blauberg 4” fans move air from hot press to kitchen, from south-facing living room to ground floor north facing kitchen and first floor north-facing bedroom.
Ventilation: 2 x Passive House Institute-certified decentralized heat recovery unit. Brick enclosing walls to staircase and ceramic plank ceiling to kitchen and dining room with concrete topping designed to absorb heat and avoid overheating. Window incorporated at the very highest point of the house in the central staircase to encourage natural ventilation outside of heating season.
Cooking fumes ventilation: Overhead cooker hood, S&P Box -600 IX decorative hood with controls but without motor connected by 6” duct to S&P TD-Silent TD 500/150-160 fan with 350/450/550 m³/h speeds. No heat recovery. Always used for frying but not always for boiling as risk of PM2.5 is lower.
Water efficiency measures: Dual flush toilets, gravity only water. First floor shower 2 litres per minute, Ground floor shower 4 litres per minute. Graf 5,000 litre garden underground storage pumped to attic tank for toilets, plants and washing machine. Washing machine can also use mains water.
Electricity: 4 kW Longi solar photovoltaic array with average annual output of 3.5kW. 5 kW battery, Energy prioritised for battery first, then domestic hot water heating via upper and lower immersions and excess electricity exported. Car charging installed but not used.

Image gallery
https://passivehouseplus.co.uk/magazine/feature/mass-appeal#sigProIdaeaeef46aa


